Fasader

Plan

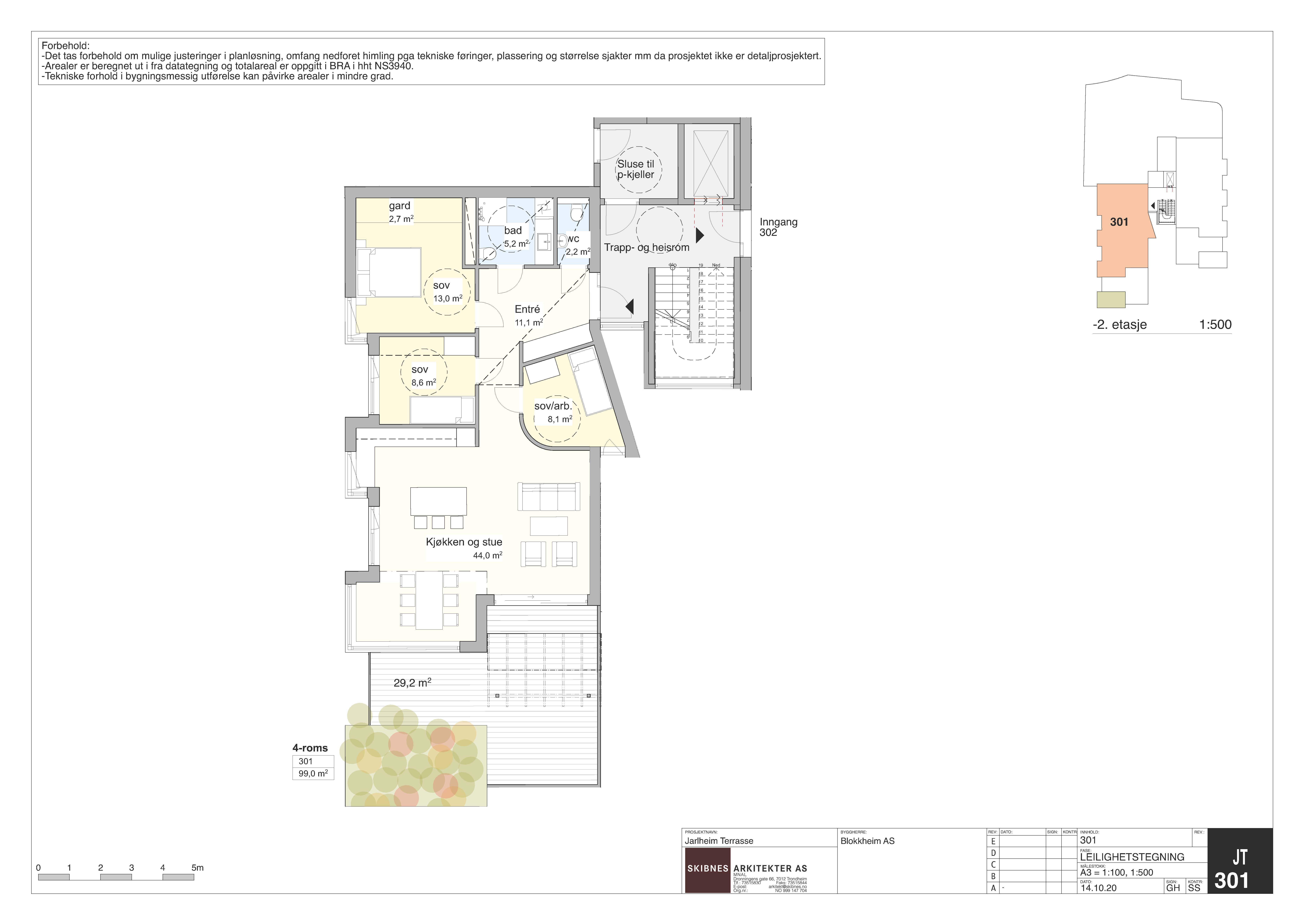
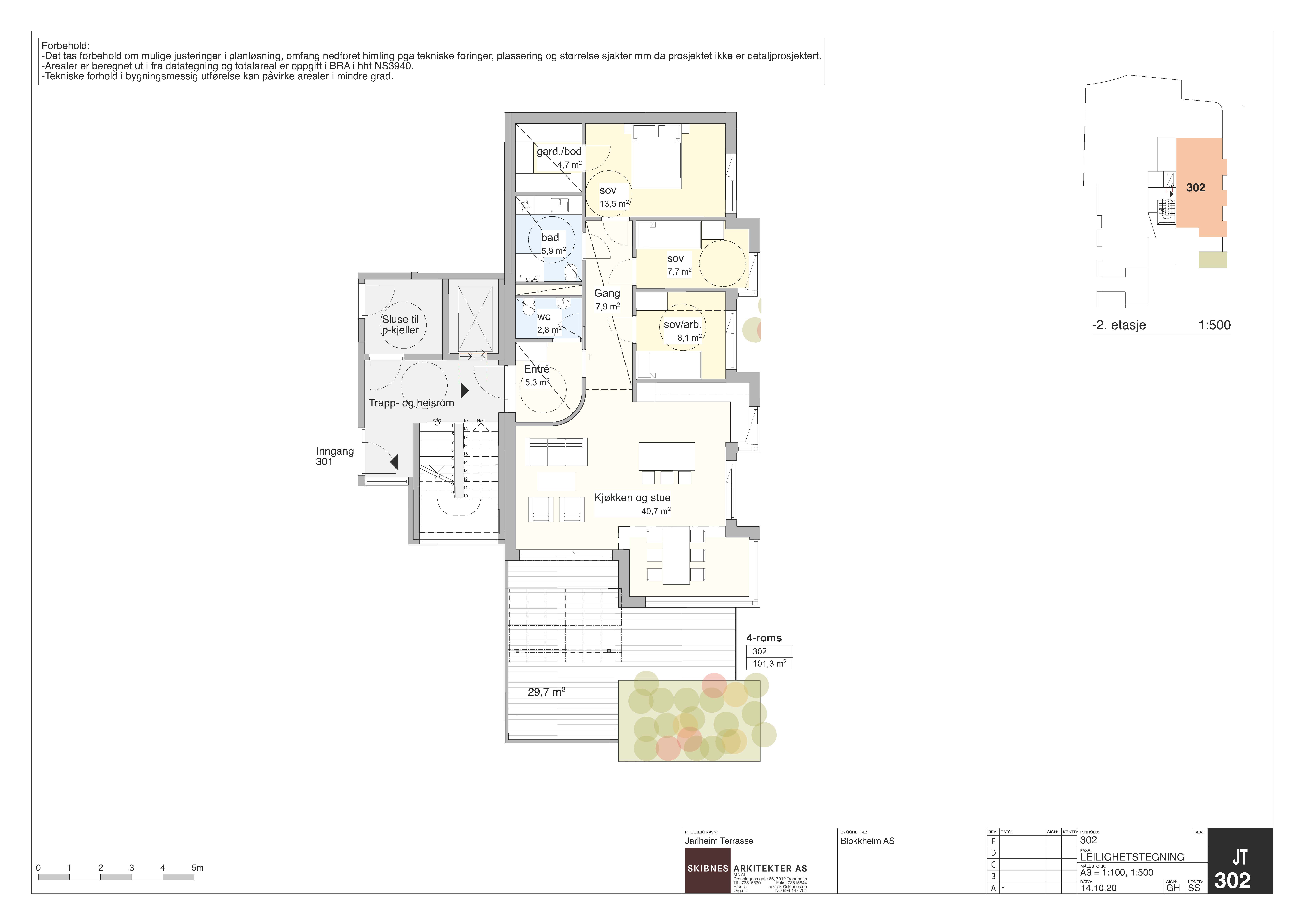
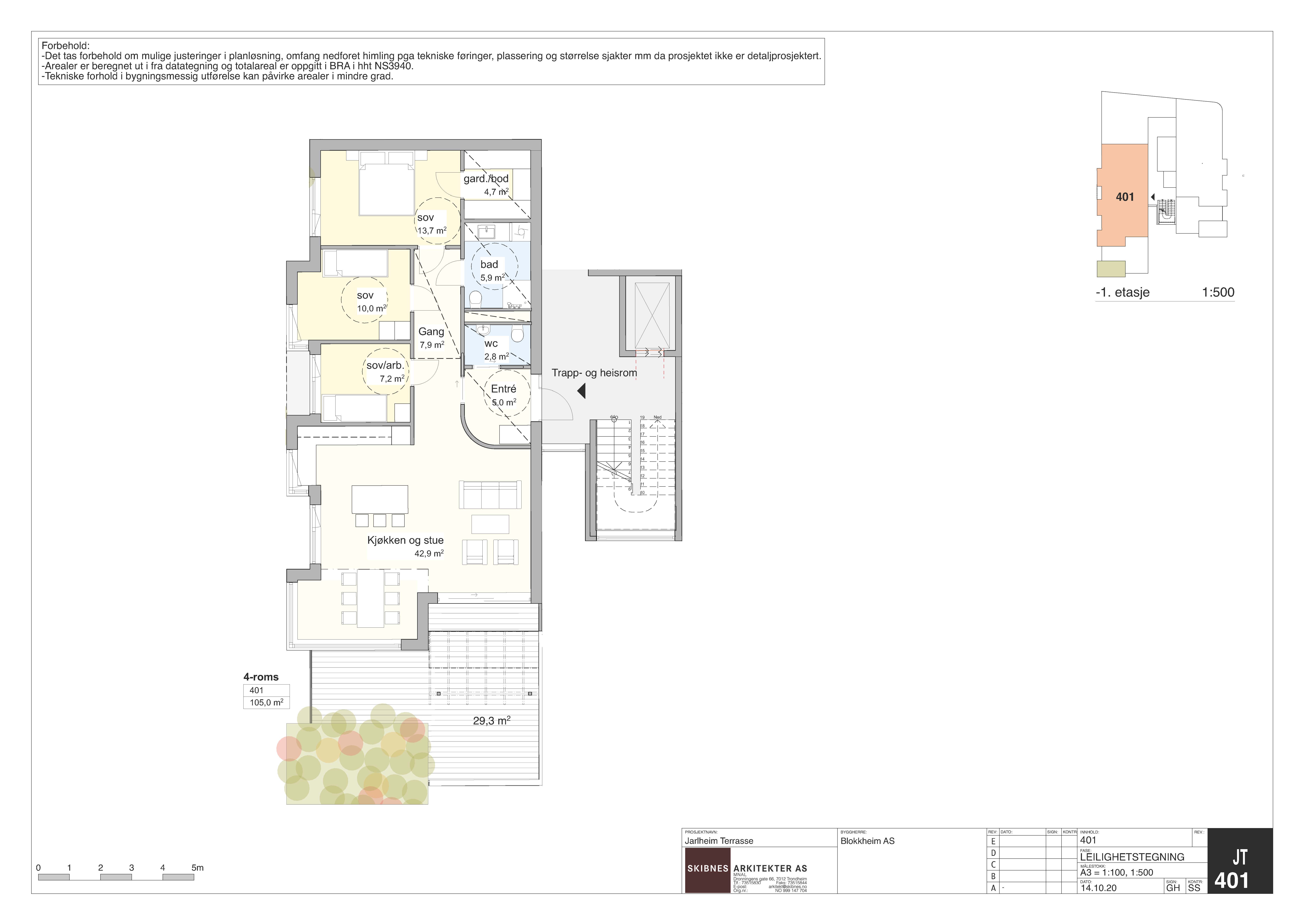
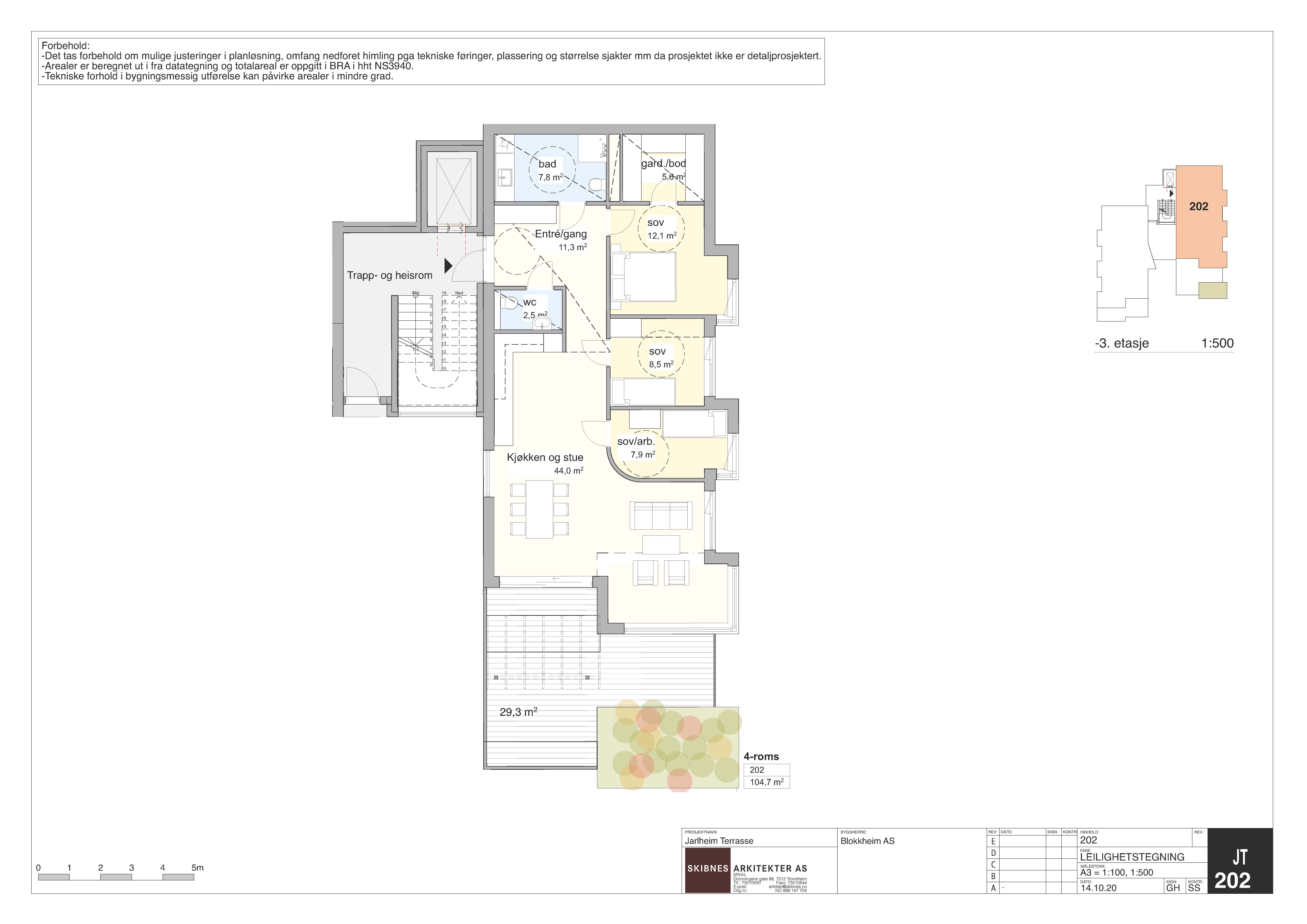
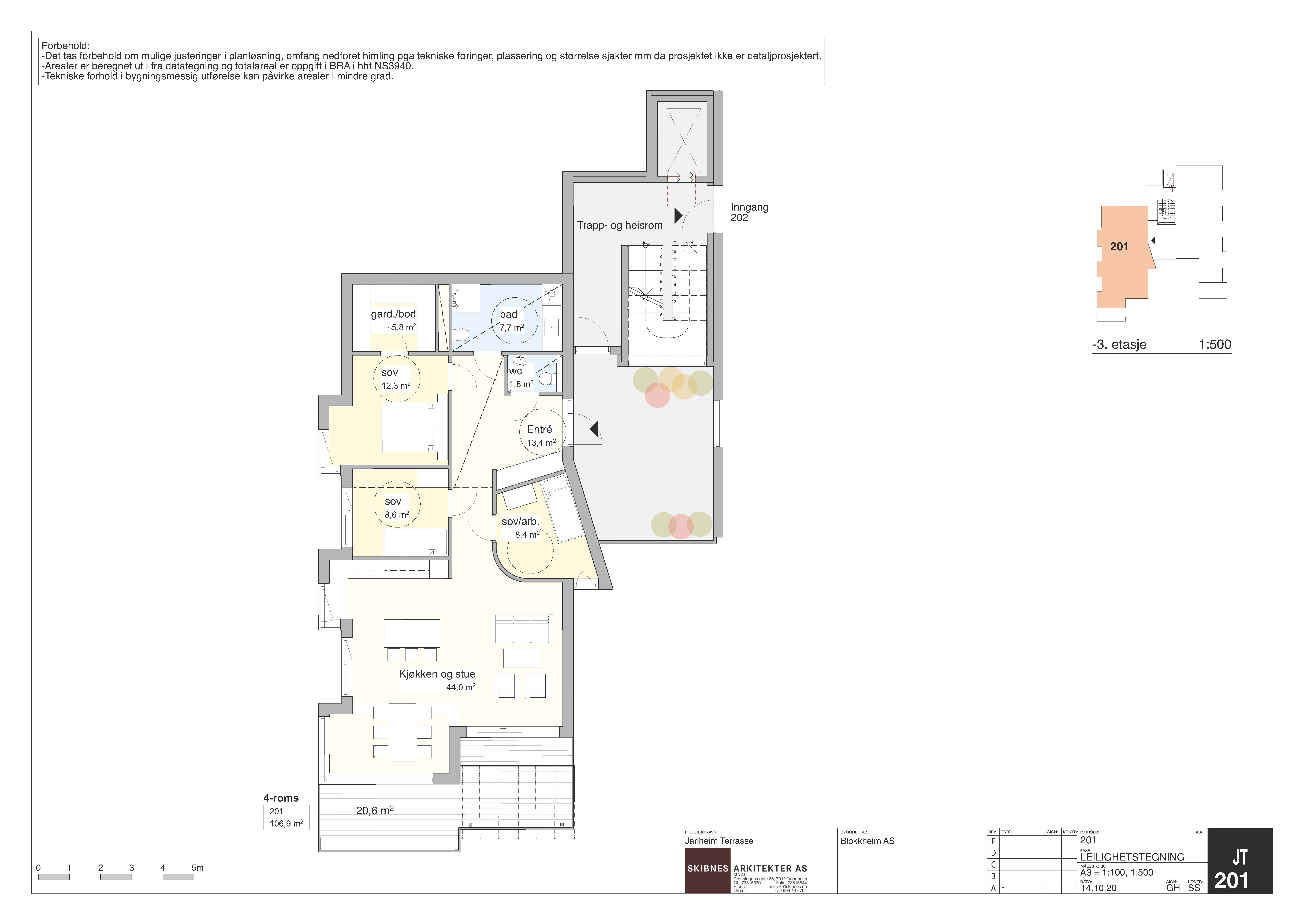
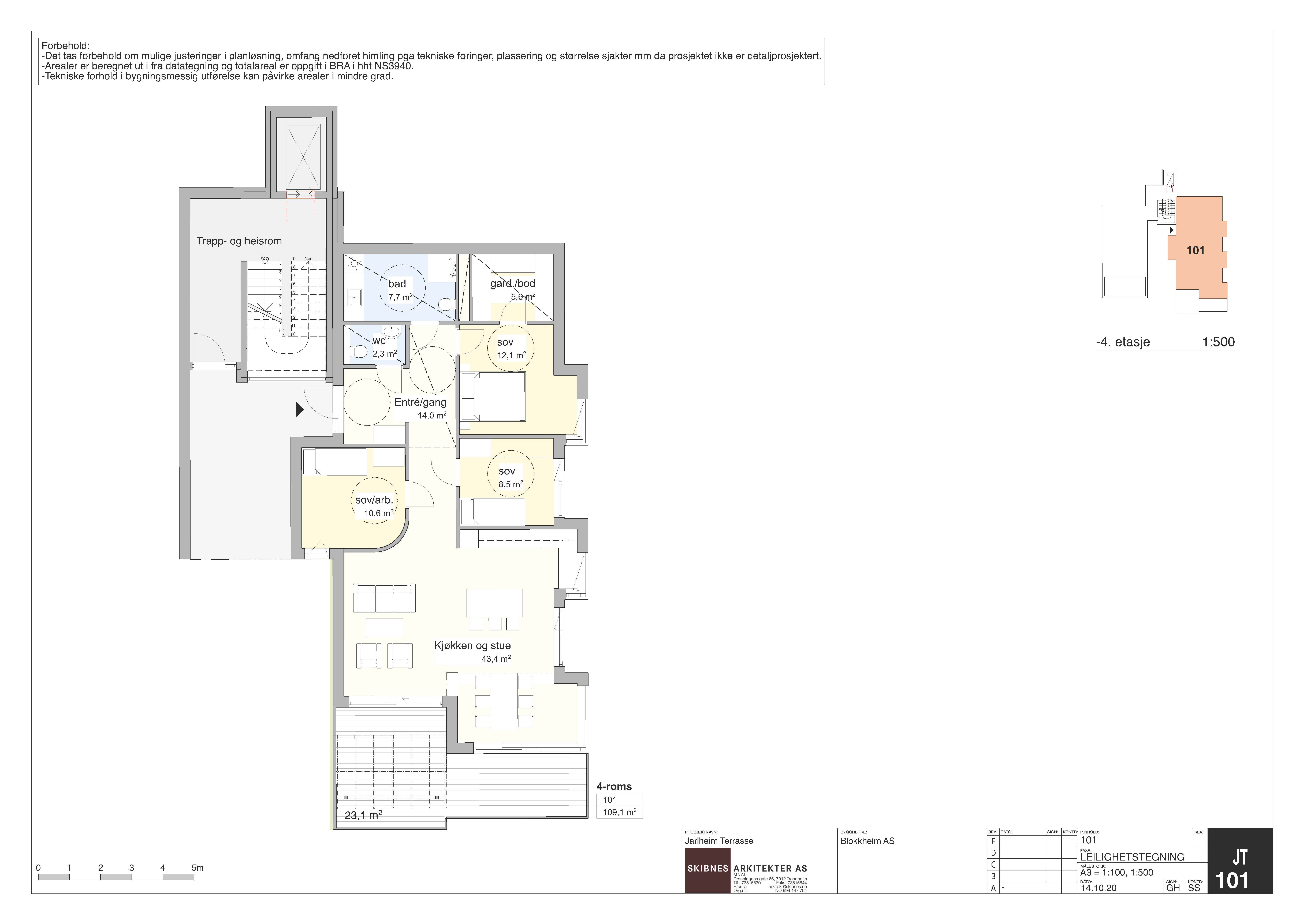
Leiligheter

 

Fasade- og plantegninger

Alle tegninger og illustrasjonsmateriale er kun å betrakte som illustrativt.

I tegningsmaterialet er 5.etasje (plan 1) hovedadkomst fra  Richard Withs vei.
Byggets nivåer fordeler seg som følger:
Plan 1 på tegning = etasje 5 - hovedadkomst
Plan -1 på tegning = etasje 4
Plan -2 på tegning = etasje  3 - sekundærutkjøring parkeringskjeller
Plan -3 på tegning = etasje 2
Plan -4 på tegning = etasje 1

 

© Copyright Blokkheim AS